15 by 40 small house plan | 600 square feet house plan | low budget modern 2 bedroom house plan desings | normal house front elevation designs

 

Aaj aap ke liye low budget modern 2 bedroom house plan desing le ke aye hai. Joki 15 by 40 house plan hone wala hai. Jiska surface area 600 square feet hai aap ya bhi bol sakate hai 600 square feet house plan . Aur yah 2 bedroom wala house plan Ya kahe to 2bhk house plan hogaJo ki aap ko low budget simple house plan desings. Me dekhane ko mile ga. 


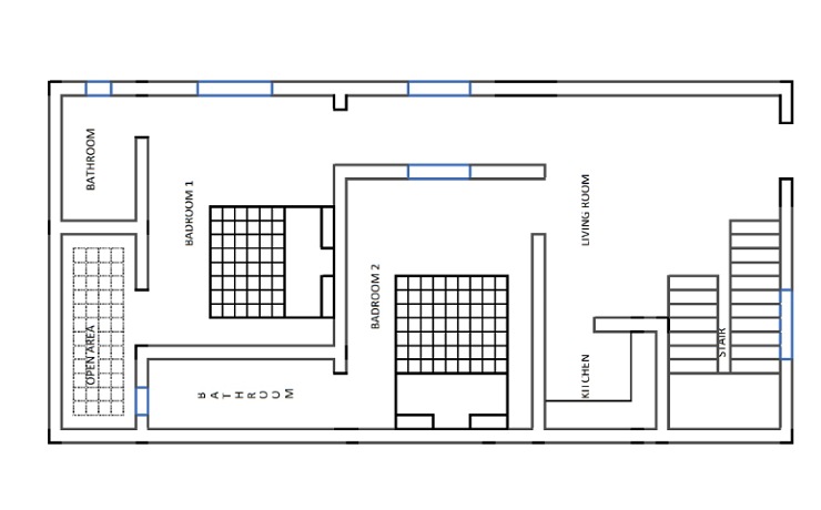
1. 2 bedroom


2. Kitchea 


3.living room


4 2 bathroom


5 opane area

15 by 40 house plan 


esh house plan me aap ko 2 bedroom mile ga jiska size
1 bedroom ka size 10 by 10 ft hai aur 2 bedroom ka size bhi 10 by 10 ft hai
Wahi bat kre kitchen ki to aap ko kitchen ka size 6 by 6 ft dekne ko mile ga.
Aur esh home plan ke living room ki bat kre to uska size 9 by 12 ft hai
Bathroom ki bat kre to 3.6 by 10 ft hai  aur 2 bathroom ka size 4 by 5 ft hai  eske open area ka size 4 by 10 hai
Wahi bat kre eske home plan front elivnormal designs ki to aap ko normal house front elevation designs dekhne ko mile ga jo kuchh esh prakar hoga 


Aap chahe to aap ke liye aur front elevation desing bana sakte hai bas aap ko hamare post ko  share aur ek comment karna hai bas etna kr do 

🔖 Tag for this post

 frame house plan

house plan 1 bedroom

house plan 1000 sq ft

house plan 1200 sq ft

house plan 1500 sq ft

house plan 2 bedroom

house plan 3 bedroom

house plan 30x40

house plan 3d

house plan 4 bedroom

house plan 5 bedroom

house plan 6 bedroom

house plan 600 sq ft

house plan 700 sq ft

house plan 800 sq ft

house plan 900 sq ft

house plan app

house plan autocad

house plan books

house plan builder

house plan bungalow

House Plan Craftsman

house plan creator

house plan drawing

house plan drawing app

house plan elevation

house plan farmhouse

house plan gallery

house plan garage

house plan ghana

house plan ideas

house plan images

house plan in 1000 sq ft

house plan india

house plan japan

house plan kenya

house plan kerala

house plan l shape

house plan layout

house plan maker

house plan model

house plan narrow lot

house plan nigeria

house plan one floor

house plan one story

house plan open concept

house plan open floor

house plan philippines

house plan photos

house plan pictures

house plan pinterest

house plan prices

house plan simple

house plan sketch

house plan software

house plan two story

house plan view

house plan with basement

house plan with courtyard

टिप्पणियाँ

इस ब्लॉग से लोकप्रिय पोस्ट

मकान बनाने का नक्शा चाहिए | मकान का नक्शा चाहिए | घर का नक्शा चाहिए | गांव के घर का नक्शा | सिंपल घर का नक्शा

700 sq feet home plan ||700 स्क्वायर फीट घर का नक्शा || 700 square feet me ghar ka naksha || House plan 700 square feet || home plan || house plan || 700 sq ft home plan

2 room ka naksha || 2 room ka ghar || 2 room kitchen bathroom plan || 2 bedroom house design || 2 room house design || 2bhk house plan || 2 room home